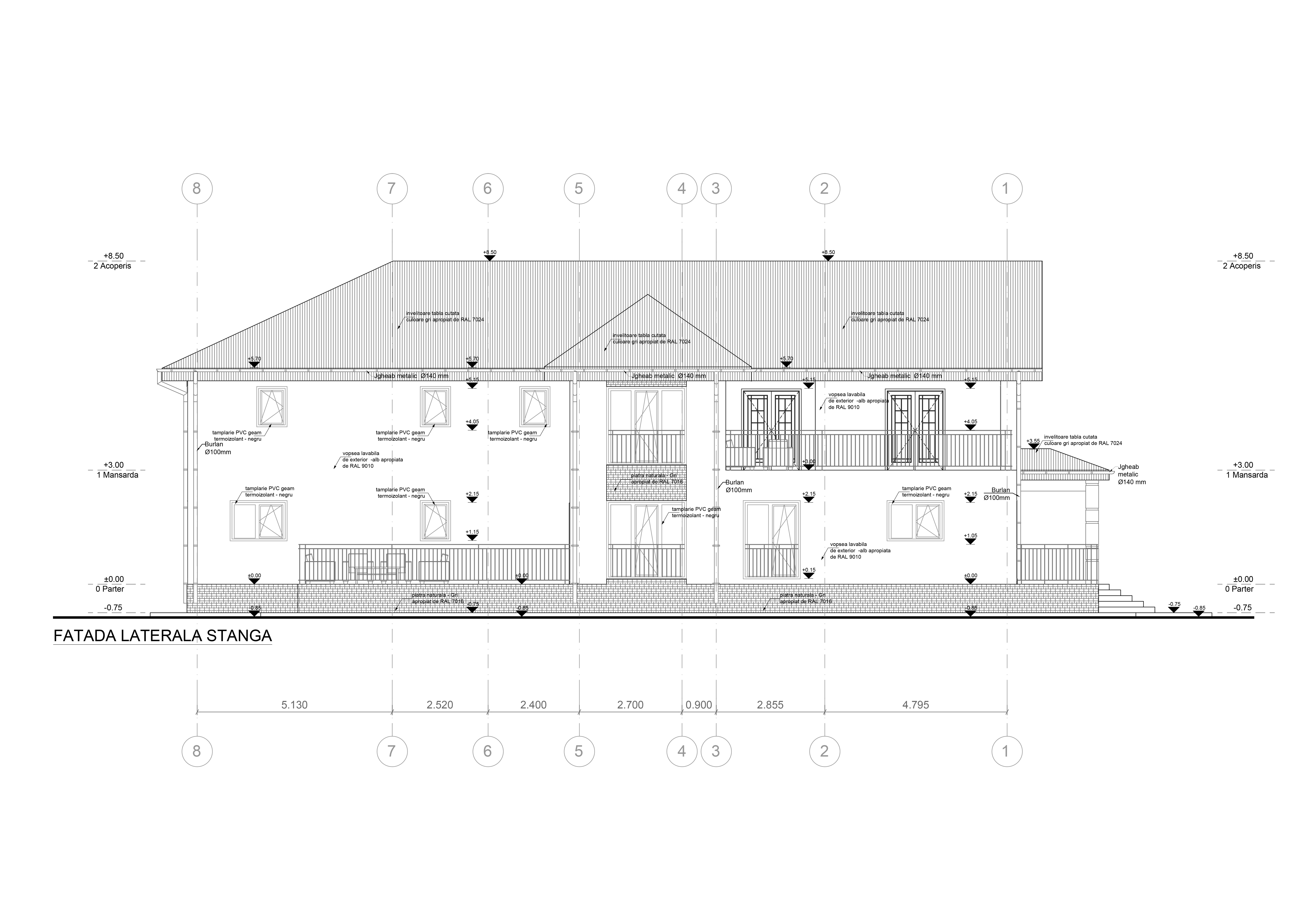
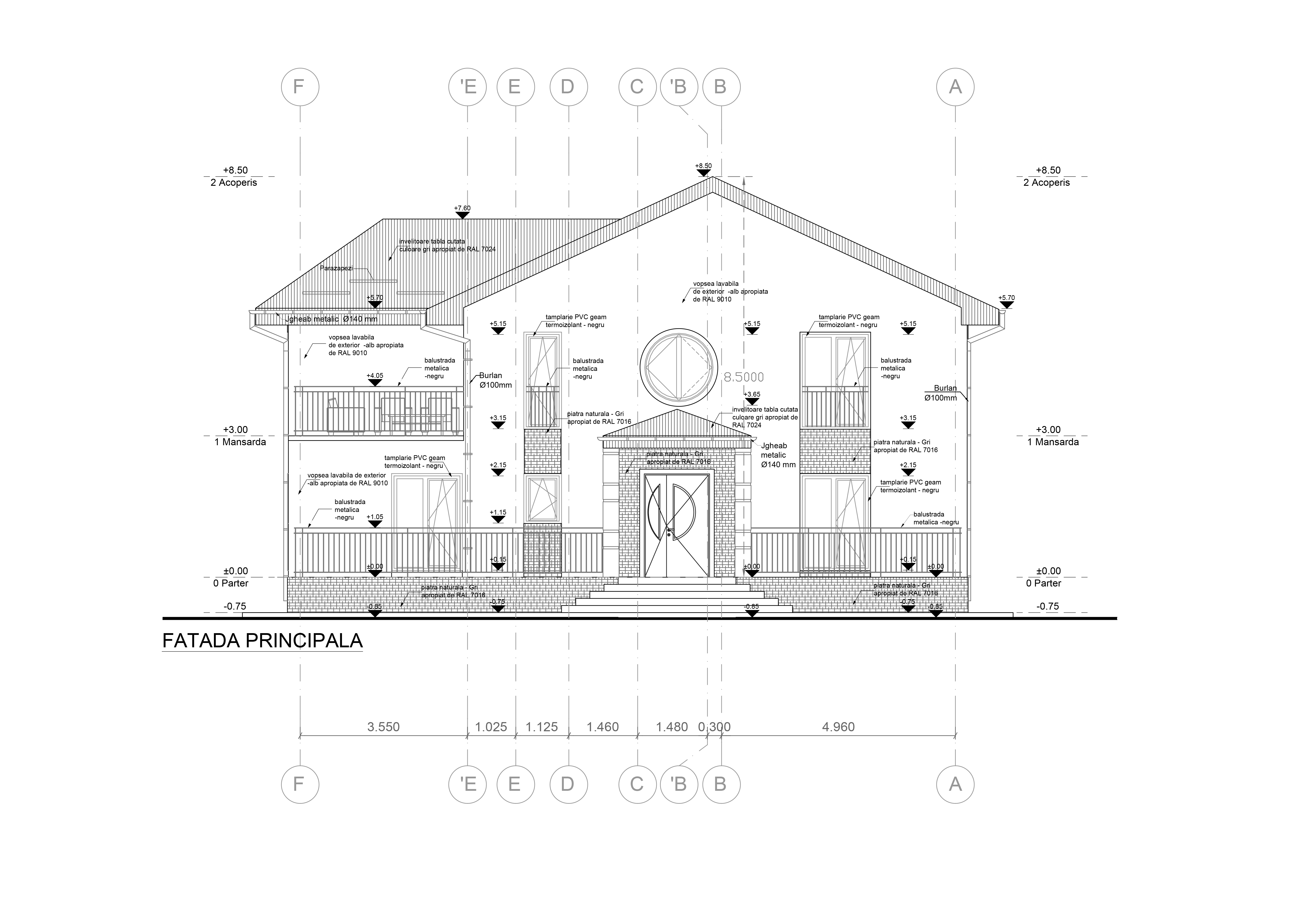
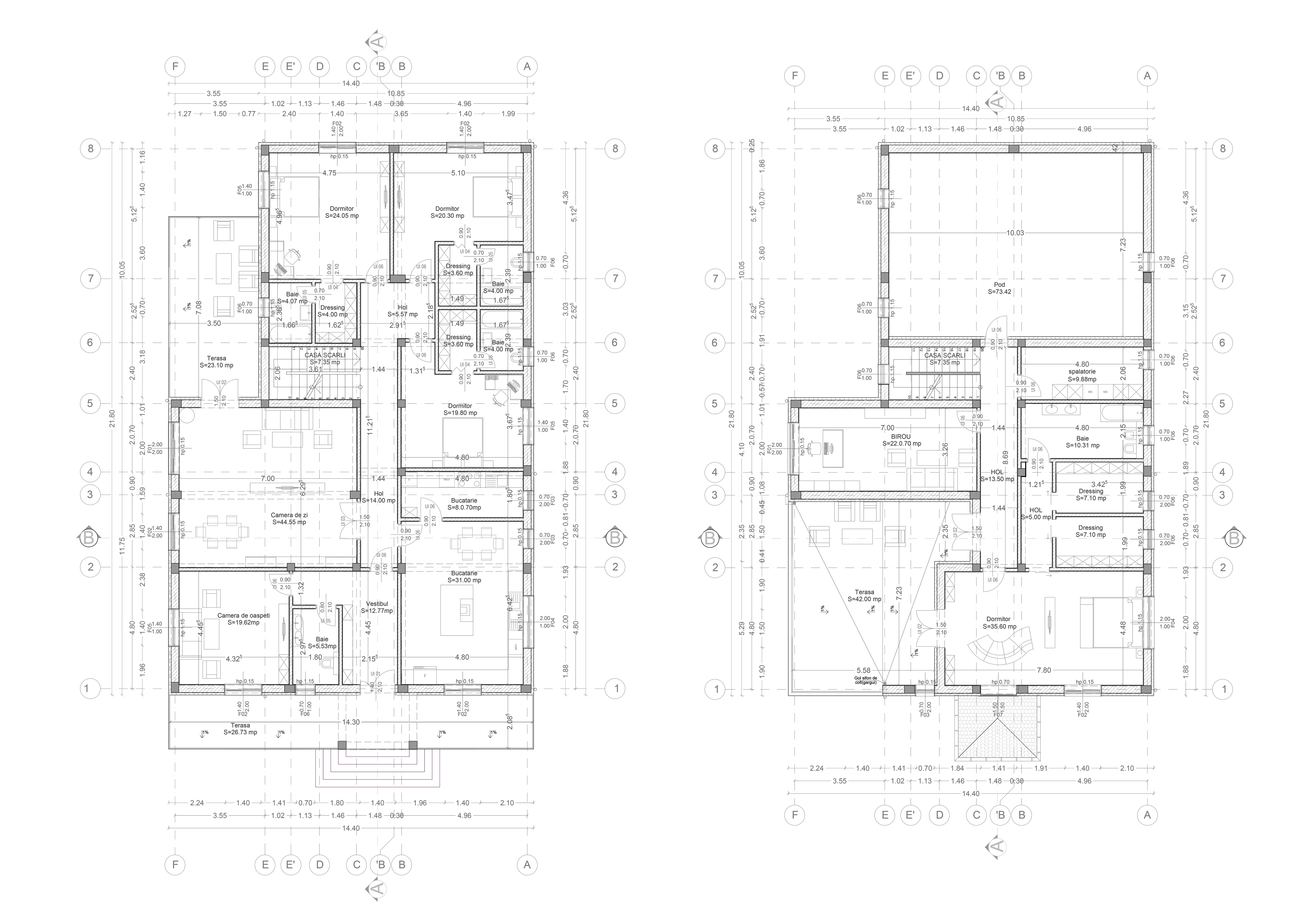
Locuinta unifamiliala P+M - desene tehnice

Architecture

Proiect Arhitectura pentru locuinta unifamiliala cu regim de inaltime P+M, din Voluntari, Ilfov.

  • Locuinta unifamiliala P+M - desene tehnice - 169
  • Locuinta unifamiliala P+M - desene tehnice - 170
  • Locuinta unifamiliala P+M - desene tehnice - 171
  • Locuinta unifamiliala P+M - desene tehnice - 172