Servicii complete de Arhitectura si Design Interior

pentru spatii rezidentiale, comerciale, birouri si horeca.

Servicii complete de proiectare (DTAC si PTh) si documentatia

necesara pentru autorizatii de construire si modificare interioara.

Proiect complet de arhitectura, rezistenta si instalații.

Urmarire de santier si consultanta pe toata perioada de implementare.

Hai să ne cunoaștem!
Derulează

Servicii

Proiecte

Casa Multifamiliala P+2E, desene tehnice
Casa Multifamiliala P+2E, desene tehnice

Proiect arhitectura pentru casa multifamiliala cu regim de inaltime P+2E, din Voluntari, Ilfov.

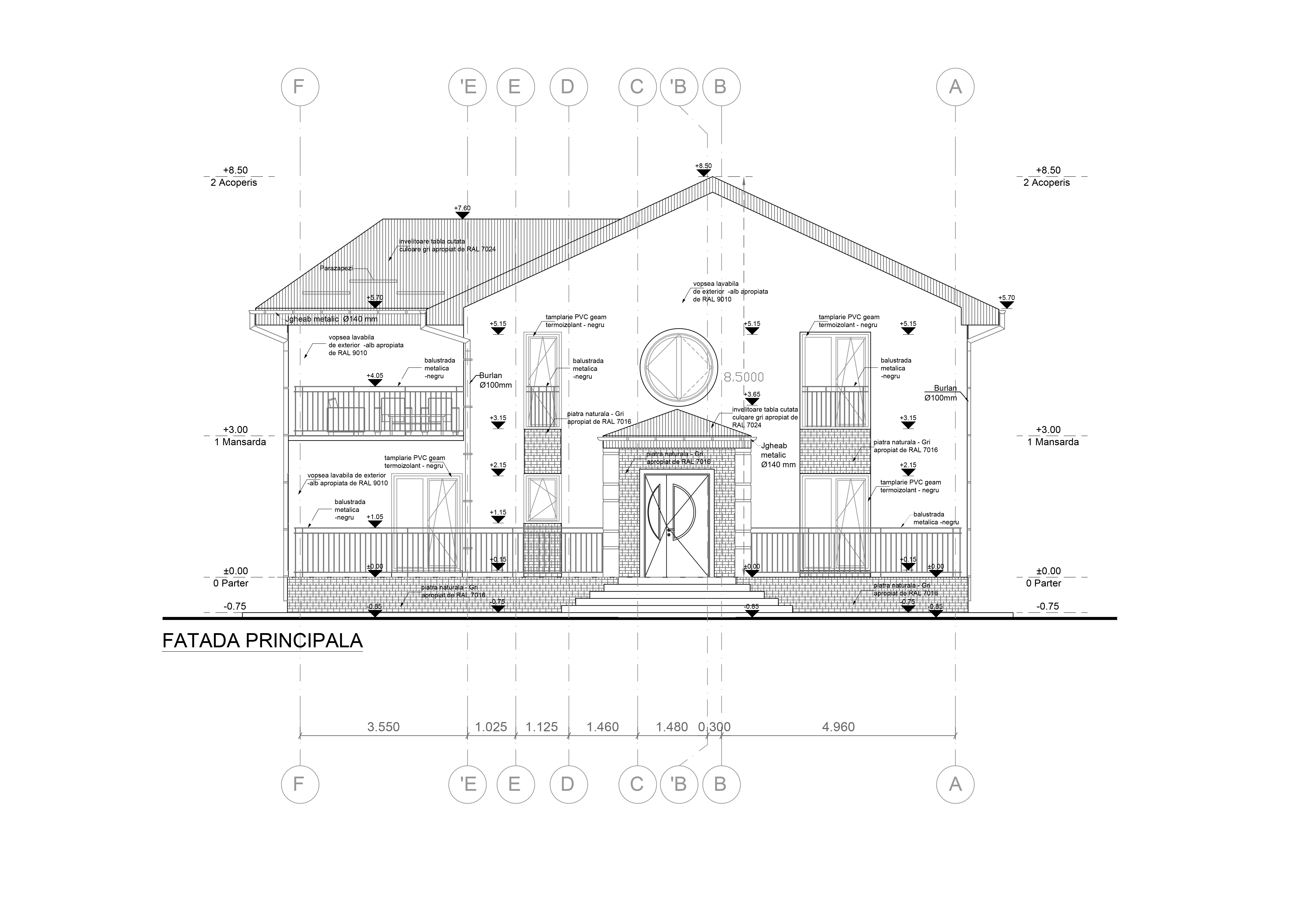
Locuinta unifamiliala P+M - desene tehnice
Locuinta unifamiliala P+M - desene tehnice

Proiect Arhitectura pentru locuinta unifamiliala cu regim de inaltime P+M, din Voluntari, Ilfov.

Locuinta unifamiliala - desene tehnice
Locuinta unifamiliala - desene tehnice

Proiect arhitectura pentru o locuinta unifamiliala cu regim de inaltime P+E in stil modern.

Living room - Cortina Nord
Living room - Cortina Nord

Proiect design interior pentru o cameră de zi unde combinăm funcționalitate și estetică.

Amenajare interioara, apartament 68mp Berceni
Amenajare interioara, apartament 68mp Berceni

Amenajare interioara, apartament 68mp, din Berceni, sector 4, Bucuresti. Hol intrare / Bucataria /...

Modern living room
Modern living room

Proiect design interior - living room