Afișare/ascundere navigație
Acasă
Despre noi
Proiecte
Servicii
Produse
Contact
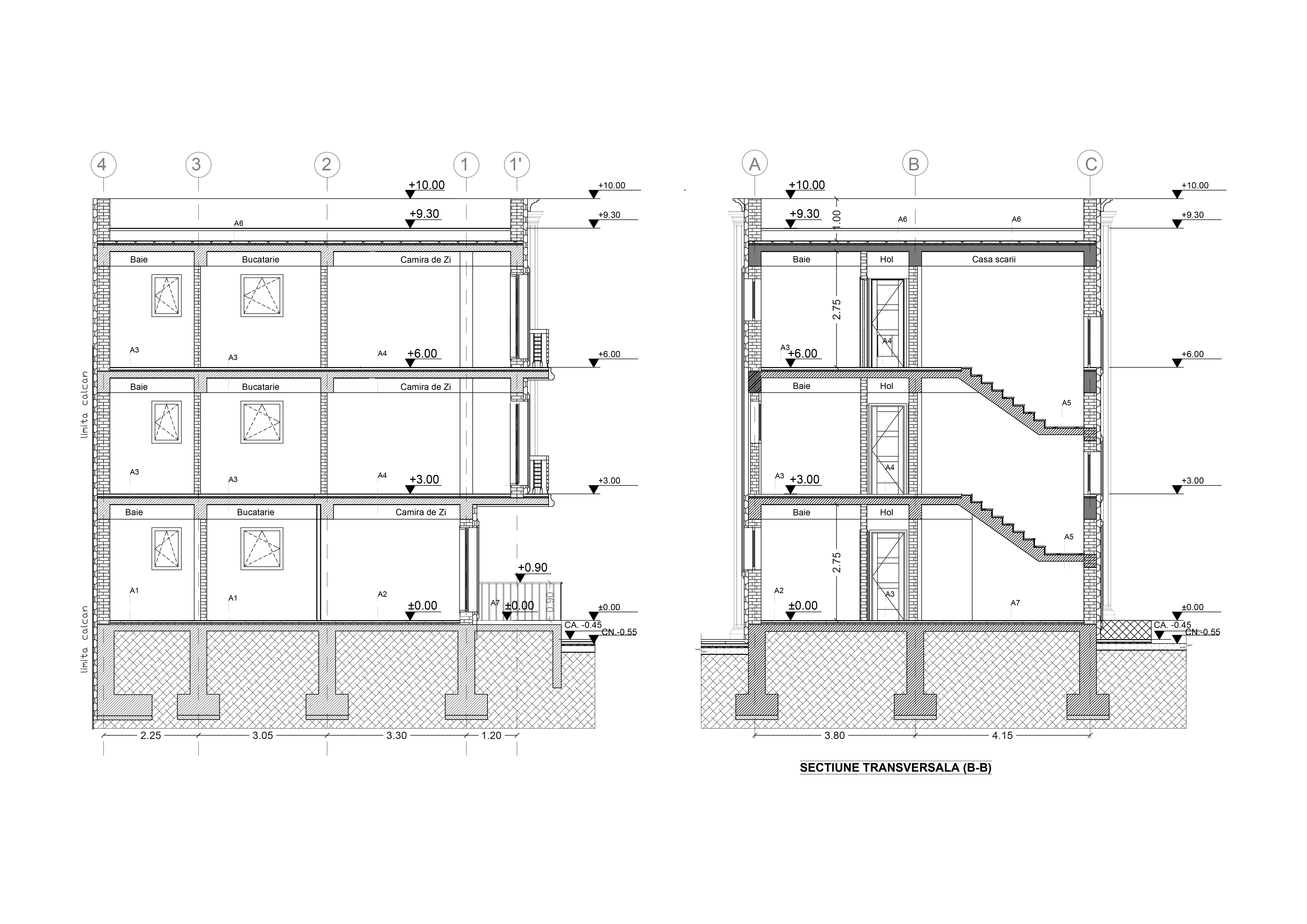
Casa Multifamiliala P+2E, desene tehnice
Proiecte
Casa Multifamiliala P+2E, desene tehnice
Architecture
Proiect arhitectura pentru casa multifamiliala cu regim de inaltime P+2E, din Voluntari, Ilfov.
Proiect anterior
Proiect următor