Proiect design și arhitectura casa unifamilială P+M cu o suprafața totală de 190mp.
Localitate: București
Proiectul nostru de design exterior pentru o vilă unifamilială Parter + Etaj în stil neoclasic îmbină armonios elemente tradiționale cu accente contemporane pentru a crea o imagine de eleganță atemporală. Stuco alb imaculat, arcade gra...
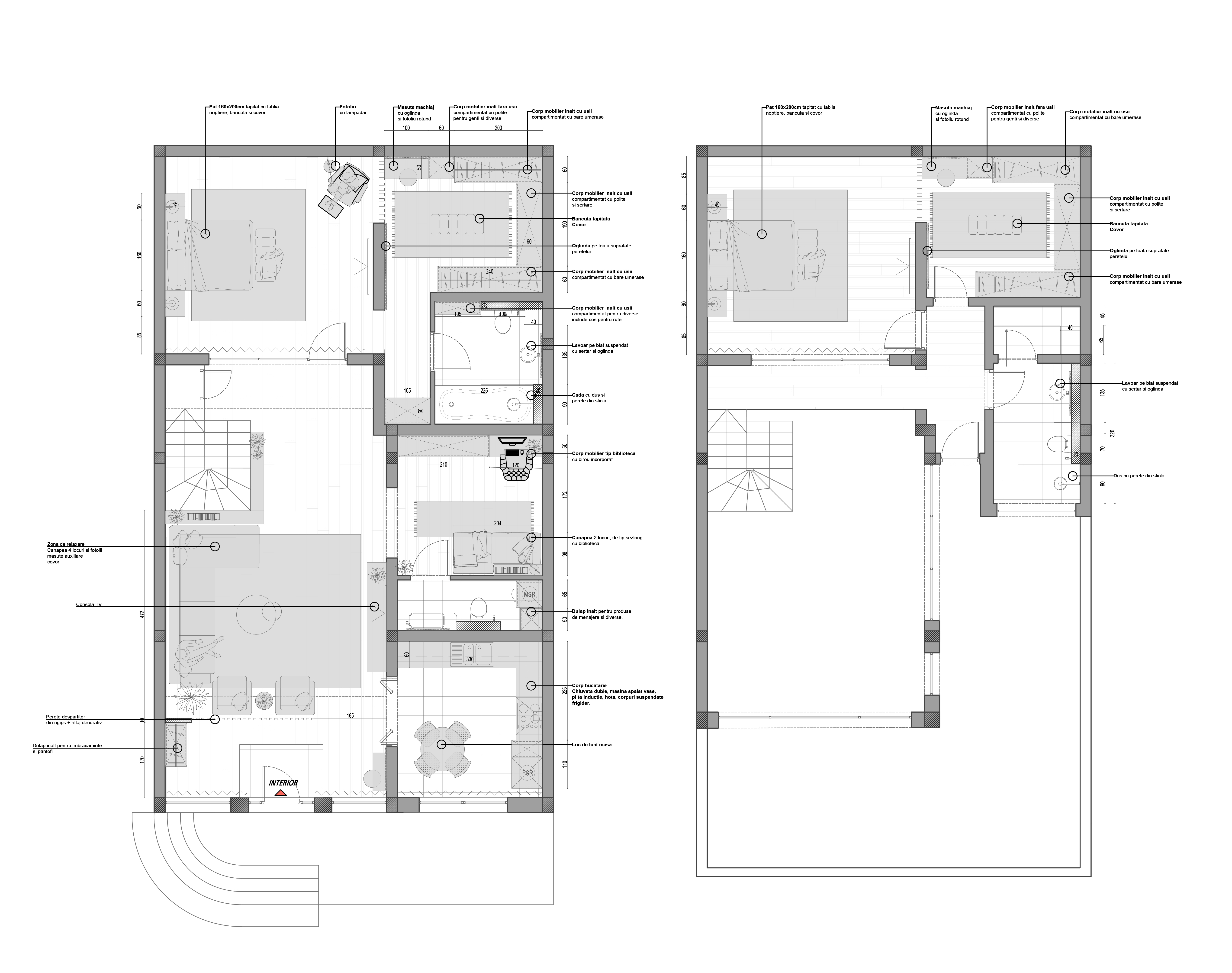
Plan mobilier 2D pentru o cada unifamiliala P+1E
Proiect arhitectura pentru o locuinta unifamiliala cu regim de inaltime P+E in stil modern.
Proiect Arhitectura pentru locuinta unifamiliala cu regim de inaltime P+M, din Voluntari, Ilfov.
Proiect arhitectura pentru casa multifamiliala cu regim de inaltime P+2E, din Voluntari, Ilfov.